Vöslauerstraße 52-54
Baden bei Wien
Einzigartige Architektur und Raumdesign

Leben und investieren in Baden
Bei dem Projekt in der Vöslauer Straße 52–54 in 2500 Baden handelt es sich um die Entwicklung und Realisierung von zwei eigenständigen Wohnhausanlagen, die über ein gemeinsames Kellergeschoss mit Tiefgarage (34 Stellplätze) sowie einem gemeinschaftlich genutzten Kleinkinderspielplatz verbunden sind.
Die rechtskräftige Baugenehmigung liegt vor, der Baustart für das Gesamtprojekt erfolgt Anfang Q2 2026.
Die Lage mitten im Stadtgebiet von Baden bietet exzellente infrastrukturelle Voraussetzungen: Supermärkte, Schulen, Ärzte, öffentliche Verkehrsmittel sowie die historische Innenstadt sind bequem fußläufig erreichbar.
~32-130m²
Wohnfläche
~6-39m²
Balkon doer Terasse
ab 197.608
Euro
Baubeginn
Q2 2026
Wähle deine Traumwohnung
Alles aus einer Hand
Von der ersten Besichtigung über die Finanzierung und Planung bis hin zur Schlüsselübergabe:
Die Unique Creo Group begleitet Sie als verlässlicher Komplettanbieter mit höchster Serviceorientierung. Unser Ziel ist es, Ihnen den Erwerb Ihrer Immobilie so angenehm und sorgenfrei wie möglich zu gestalten – inklusive individueller Sonderwünsche, die wir unkompliziert und professionell umsetzen.
Highlights des Projektes
Moderne Architektur mit klaren Linien und perfekte Grundrisse:
- 1–5 Zimmer Wohnungen mit Eigengarten, Balkon oder Terrasse.
- Insgesamt 24 Wohneinheiten, 4 Gewerbeeinheiten, private Freiflächen: Eigengärten und Terrassen mit hochwertiger Ausstattung Parkettböden, Fußbodenheizung und nachhaltiges Energiekonzept
- Tiefgarage mit 34 Stellplätze
- Hohe Lebensqualität: Fußläufig zur Badener Innenstadt, Schulen, Kindergärten, Ärzten und Freizeitangeboten.
- Optimale Anbindung: Hervorragende Verkehrsanbindung nach Wien und Wiener Neustadt (Bahn, Bus und Straße).
- Moderne Bauweise: Massivbau, Fernwärmeversorgung, optionale PV-Anlage und E-Ladestation.
- Grün & Gemeinschaft: Begrünte Außenflächen und eigener Kinderspielplatz.

Projekt Baden bei Wien

Sorgenfreier
Kauf
Schlaue
Finanzierung
Alles aus
einer Hand
Starke
Partner

Urbanes Flair trifft Naturverbundenheit
Die zentrale Lage im Herzen von Baden verbindet urbanes Wohnen mit der Ruhe einer traditionsreichen Kurstadt. Supermärkte, Schulen, Kindergärten, Ärzte, öffentliche Verkehrsmittel und die historische Innenstadt sind bequem fußläufig erreichbar.
Zudem profitieren Sie von einer ausgezeichneten Verkehrsanbindung Richtung Wien und Wiener Neustadt.
Investieren Sie in Ihre Zukunft
Ob als Eigenheim oder Vorsorgewohnung – das Projekt Vöslauer Straße 52–54 bietet eine zukunftssichere Investition mit hoher Lebensqualität.
Sichern Sie sich jetzt Ihre Wunschwohnung und profitieren Sie von attraktiven Vorverkaufskonditionen.
Massiver
Ziegelbau
Nachhaltiges
Wohnen
E-Auto
Ladestation
Photovoltaik
am Dach
Nachhaltig Geld sparen
Die Wohnhausanlagen in der Vöslauer Straße werden in hochwertiger Niedrigenergiebauweise errichtet –für ein gesundes Raumklima und dauerhaft niedrige Energiekosten. Geheizt und gekühlt wird mit moderner Fernwärmeversorgung durch die EVN.
Auf Wunsch kann zusätzlich eine Photovoltaikanlage zur Eigenstromgewinnung realisiert werden.
Für E-Mobilität stehen in der hauseigenen Tiefgarage vorbereitete Anschlüsse für Ladestationen zur Verfügung.

Idyllische
Region
Direkte
Zuganbindung
Schulen &
Kindergärten
Ärzte &
Spitäler

Investieren Sie in Ihre Zukunft: Alles kann, nichts muss
Ob als Eigenheim oder Vorsorgewohnung – das Projekt Vöslauer Straße 52–54 bietet eine zukunftssichere Investition mit hoher Lebensqualität. Sichern Sie sich jetzt Ihre Wunschwohnung und profitieren Sie von attraktiven Vorverkaufskonditionen.
Die Unique Creo Group begleitet Sie als verlässlicher Komplettanbieter mit höchster Serviceorientierung. Unser Ziel ist es, Ihnen den Erwerb Ihrer Immobilie so angenehm und sorgenfrei wie möglich zu gestalten – inklusive individueller Sonderwünsche, die wir unkompliziert und professionell umsetzen.
Community
Lifestyle
Infrastructure
Daily Life
Projekt Baden bei Wien
Vöslauerstraße 52-54
Willkommen in Ihrem neuen Zuhause! In Baden bei Wien entstehen stilvolle Wohnungen in Verbdindung mit höchstem Komfort . Durchdachte Grundrisse, hochwertige Materialien und eine ruhige Lage machen diese Immobilien zur idealen Wahl für Familien, Paare und alle, die ein nachhaltiges und behagliches Wohnambiente suchen. Entdecken Sie die verfügbaren Einheiten in der folgenden Übersicht.
| Nummer | Wohnnutzfläche | Terrasse | Garten | Balkon | Keller | Kaufpreis ab* | Pläne | |
|---|---|---|---|---|---|---|---|---|
| 52 Top 01 Stiege 01 / Etage EG – Gewerbe | 84,91 m² | 39,49 m² | – | – | 2,25 m² | 382.095€ | JPG | |
| 52 Top 02 Stiege 01 / Etage EG – Gewerbe | 155,06 m² | – | – | 32,06 m² | 2,25 m² | 697.770€ | –JPG | |
| 52 Top 03 Stiege 01 / Etage 02 | 115,06 m² | – | – | 13,87 m² | 2,25 m² | 726.374€ | JPG | |
| 52 Top 04 Stiege 01 / Etage 02 | 109,03 m² | – | – | 18,21 m² | – | 688.306€ | JPG | |
| 52 Top 05 Stiege 01 / Etage 03 | 115,06 m² | – | – | 13,87 m² | – | 737.454€ | JPG | |
| 52 Top 06 Stiege 01 / Etage 03 | 109,03 m² | – | – | 18,21 m² | – | 698.806€ | JPG | |
| 52 Top 07 Stiege 02 / Etage EG mit Gartenfläche | 119,34 m² | – | 77,66 m² | 33,54 m² | – | 830.010€ | JPG | |
| 52 Top 08 Stiege 02 / Etage EG mit Gartenfläche | 106,75 m² | – | 81,22 m² | 34,22 m² | – | 742.446€ | JPG | |
| 52 Top 09 Stiege 02 / Etage 01 | 119,72 m² | – | – | 17 m² | – | 755.792€ | JPG | |
| 52 Top 10 Stiege 02 / Etage 01 | 106,37 m² | – | – | 21,70 m² | – | 671.261€ | JPG | |
| 52 Top 11 Stiege 02 / Etage 02 | 119,72 m² | – | – | 17m² | – | 755.792€ | JPG | |
| 52 Top 12 Stiege 02 / Etage 02 | 106,37 m² | – | – | 21,70 m² | – | 671.198€ | JPG | |
| 🔴 | 52 Top 13 Stiege 02 / Etage 03 | 119,72 m² | – | – | 17 m² | – | 767.321€ | JPG |
| 52 Top 14 Stiege 02 / Etage 03 | 106,37 m² | – | – | 21,70 m² | – | 681.757€ | JPG | |
| 54 Top 01 Stiege 01 / Etage EG – Gewerbe | 59,82 m² | 24,66 m² | – | – | – | 274.175€ Netto | JPG | |
| 54 Top 02 Stiege 01 / Etage 01 – Gewerbe | 75,75 m² | – | – | 14,7 m² | – | 347.188€ Netto | JPG | |
| 54 Top 03 Stiege 01 / Etage 02 | 32,4 m² | – | – | 5,63 m² | – | 197.608€ | JPG | |
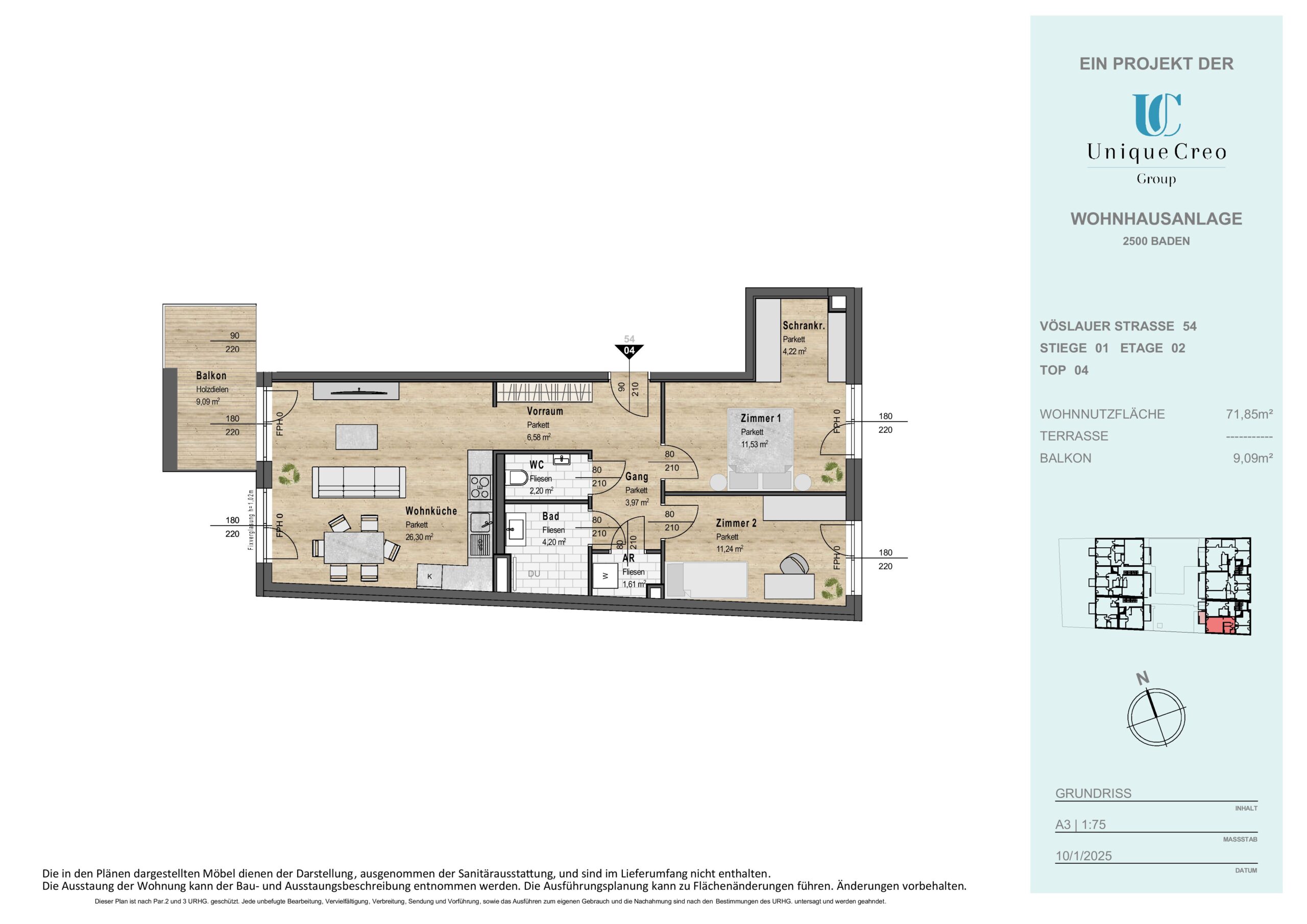
| 54 Top 04 Stiege 01 / Etage 02 | 71,85 m² | – | – | 9,09 m² | – | 438.213€ | JPG | |
| 54 Top 05 Stiege 01 / Etage 03 | 32,4 m² | – | – | 5,63 m² | – | 201.074€ | JPG | |
| 54 Top 06 Stiege 01 / Etage 03 | 71,85 m² | – | – | 9,09 m² | – | 445.901€ | JPG | |
| 54 Top 07 Stiege 02 / Etage EG mit Gartenfläche | 44,62 m² | 21,02 m² | – | – | – | 271.527€ | JPG | |
| 54 Top 08 Stiege 02 / Etage EG mit Gartenfläche | 63,47 m² | 23,81 m² | 82,59m² | – | – | 414.269€ | JPG | |
| 54 Top 09 Stiege 02 / Etage 01 | 44,52 m² | – | – | 11,61 m² | – | 271.527€ | JPG | |
| 54 Top 10 Stiege 02 / Etage 01 | 63,47 m² | – | – | 6,90 m² | – | 387.104€ | JPG | |
| 54 Top 11 Stiege 02 / Etage 02 | 44,52 m² | – | – | 11,61 m² | – | 271.527€ | JPG | |
| 🔴 | 54 Top 12 Stiege 02 / Etage 02 | 63,47 m² | – | – | 6,90 m² | – | 387.104€ | JPG |
| 54 Top 13 Stiege 02 / Etage 03 | 51,55 m² | – | – | 11,61 m² | – | 319.919€ | JPG | |
| 🔴 | 54 Top 14 Stiege 02 / Etage 03 | 63,47 m² | – | – | 6,90 m² | – | 393.895€ | JPG |
| Tiefgaragenstellplatz | 34 Stellplätze | – | – | – | – | pro Stellplatz – 25.000€ | – |
*Disclaimer Preise: Die auf dieser Website dargestellten Preise (Miete und Kauf) sind indikativ und freibleibend. Marktbedingte Schwankungen und die allgemeine wirtschaftliche Lage können Preisanpassungen von ca. +/- 5% zur Folge haben. Für verbindliche Preisinformationen und individuelle Angebote kontaktieren Sie uns bitte direkt.




















